Bedrooms:

Bathrooms:


Square Ft:

Main Floor:

Second Floor:

Garage:


Overall Dimensions:


Construction:

Exterior Walls: 2x6

Roof Construction:


Pricing:  

Includes:  5 sets of drawings

.pdf copy  of plans for bidding


$ .50 x square ft. Above+ Shipping

Min: $550, unless otherwise noted.

Plan #:
CrossBeam Design
Designing from the Builder’s View
LLC
Trusses
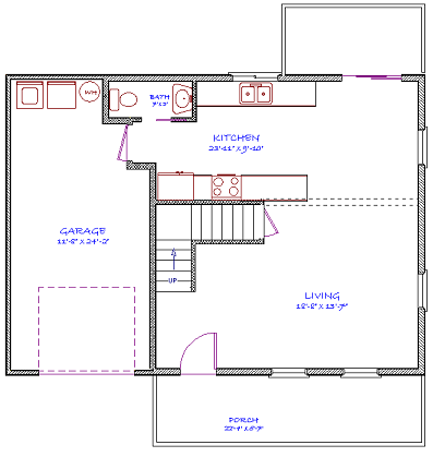
35’x31’
259 sq. Ft.
597 sq. Ft.
566 sq. Ft.
1197 sq. Ft.
3
2.5
11973BD2.5B1.5S

Contact us about this plan